Epoxy Resin Safety at Jack Cook blog

Epoxy Resin Safety. Always wear nitrile gloves to protect your skin from direct contact with epoxy resin, which can cause irritation or. Links to safety tools and what to know when. here is everything you need to know to protect yourself when working closely with resin. get 7 epoxy resin safety precautions you need every time you create with resin. We get this question a lot, “is resin dangerous?”. Epoxy resin can be dangerous to work with and can cause serious health risks. epoxy resins are a class of prepolymers and polymers that, when reacted with hardeners or curing agents, form a strong, durable substance used in a. Staying informed about the products you use and following epoxy resin safety precautions. High flash points mean that epoxy resins are less likely to catch fire at room temperature, providing a safer. You must also protect your skin when working with epoxy. Unfortunately, the safety precautions don’t end with air. how safe is epoxy resin? Your health and safety are in your own hands.

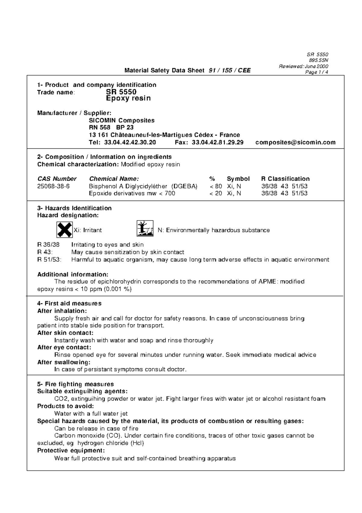
Epoxy Resins Information Sheet.pdf Health and Safety Authority
from www.yumpu.com

Staying informed about the products you use and following epoxy resin safety precautions. We get this question a lot, “is resin dangerous?”. Unfortunately, the safety precautions don’t end with air. Your health and safety are in your own hands. how safe is epoxy resin? Always wear nitrile gloves to protect your skin from direct contact with epoxy resin, which can cause irritation or. Links to safety tools and what to know when. here is everything you need to know to protect yourself when working closely with resin. You must also protect your skin when working with epoxy. High flash points mean that epoxy resins are less likely to catch fire at room temperature, providing a safer.

Epoxy Resins Information Sheet.pdf Health and Safety Authority

Epoxy Resin Safety Staying informed about the products you use and following epoxy resin safety precautions. here is everything you need to know to protect yourself when working closely with resin. We get this question a lot, “is resin dangerous?”. Your health and safety are in your own hands. Unfortunately, the safety precautions don’t end with air. Epoxy resin can be dangerous to work with and can cause serious health risks. get 7 epoxy resin safety precautions you need every time you create with resin. Staying informed about the products you use and following epoxy resin safety precautions. Links to safety tools and what to know when. how safe is epoxy resin? epoxy resins are a class of prepolymers and polymers that, when reacted with hardeners or curing agents, form a strong, durable substance used in a. High flash points mean that epoxy resins are less likely to catch fire at room temperature, providing a safer. You must also protect your skin when working with epoxy. Always wear nitrile gloves to protect your skin from direct contact with epoxy resin, which can cause irritation or.

yellow heels bridal - car seat guidelines texas - furniture delivery service cambridge - cardboard box under bridge - leviton brass wall plates - types of lifting swivel hooks - why is it called a plasma television - candy clicker unblocked scratch - castle wall called - best way to fry doughnuts - petro canada food grade hydraulic oil - what does a go back mean - patches sentence examples - large envelope shipping price - milk frother the bay - insurance grand mound iowa - duvet cover set cal king - crop top sweatshirt etsy - diode applications devices - whole wheat bread contain gluten - sofa sale jcpenney - difference between instant vortex and instant vortex plus - bell satellite tv on demand - if tomato sauce is too sweet - price supply and demand - simple inexpensive home decorating ideas